MSW põletusahju 50T/d ~ 150 t/d
Tenor madala süsinikusisaldusega uus energiatehnoloogia (Liaoning) Co., Ltd. asutati 2021. aastal, ettevõte asub Dalian Citys, Daliani tehnikaülikooli tööstuslik inkubatsioonipargis, tootmisbaas asub Yantunis, Paoai külas, Wafangdian City, Liaoning, Liaoning Provints. Meie ettevõte hõlmab kogupinda 500, 000 ruutmeetrit, enam kui kakssada töötajat, mille põhivara on 500 miljonit jüaani, enam kui 400 komplekti peamisi tootmisseadmeid, töötlemist, neetimist ja keevitamist, valamist, valamist, kokkupanekut ja kokkupanekut ja kokkupanekut, kokkupanekut ja kokkupanekut, kokkupanekut ja kokkupanekut. Teised tootmise töötoad koos kahe arenenud ettevõttega on Taanis kaks täiustatud Disha casting -tootmisliini, mis toetab automaatset sfääristamise automaatset seadmeid ja spektri jälgimisseadmeid ning toodete kvaliteet on kell Hiinas juhtiv tase.
Ettevõtte peamine ettevõte hõlmab jäätmete põletamise puhastusvahendite komplektide kavandamist, tootmist, tehnoloogia arendamist ja müüki. Ettevõte on juba pikka aega teinud tihedat koostööd Harbini tehnoloogiainstituudiga, Daliani tehnikaülikooli, Nanjingi teaduse ja tehnoloogiaülikooli ning muude tuntud ülikoolidega , Usaldusväärse professionaalse tehnilise toe, kogenud disainimeeskonnaga, et pakkuda klientidele kvaliteetseid tooteid.

Meie tootmisbaas


Tootmise töötuba
Toote sissejuhatus
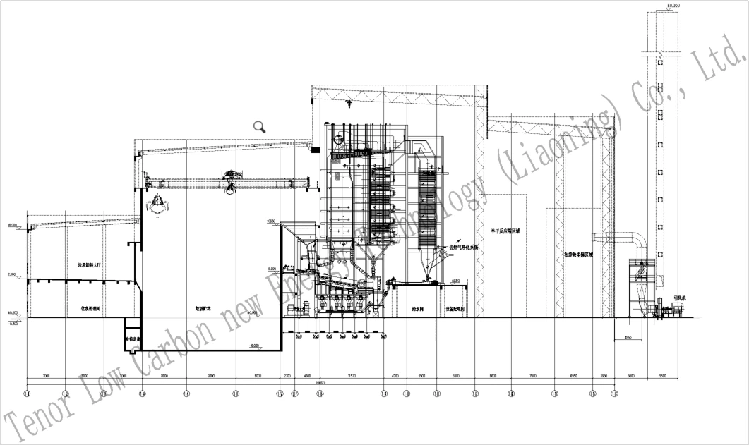
1. Jäätmete põletussüsteemi tööprotsessikirjeldus

Tenorijäätmete põletamise resti töötab välja Tenor Little süsiniku uus energiatehnoloogia (Liaoning) Co., Ltd. Põsimissüsteem koosneb söötjast, restist, tuhapunkrist, tuhakonveierist ja räbu eemaldajast ning see sobib kodumaiste jäätmete põletamise projektidega koos koos kodumaiste jäätmete jaoks koos Päevavõimsus 30 ~ 600 tonni.
Protsessi vooskeem
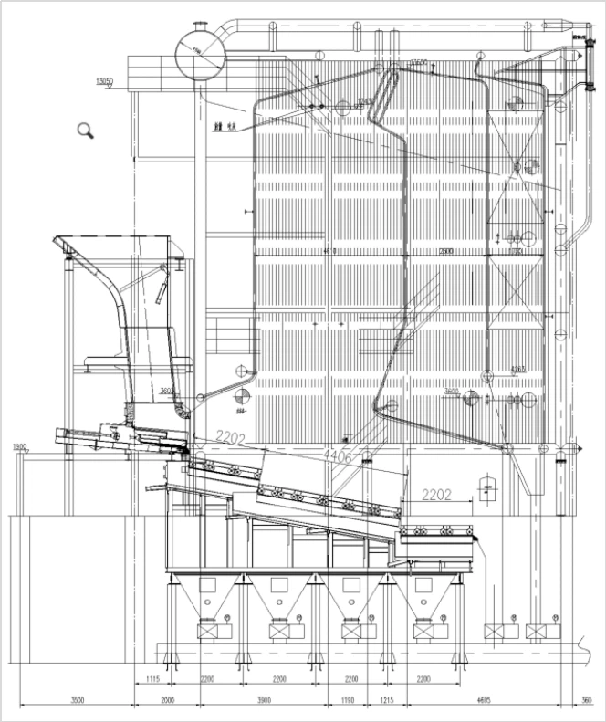
2. Peamine seadmed
Punkr ja söötur
Söötmissüsteem koosneb punkrist ja sööturist, punkri sisemisest väravast, väravast, et tagada tihendus samal ajal silla purustamise funktsiooniga, prügiklastrites silla blokeeris punkri läbi värava liikumise, et silla realiseerida. Sööturit ja väravat ajendavad silindrid, et suruda perioodiliste kolude ja tõmbeliigutuste kaudu teatud koguse prügi põletusrajatisse ning söötur saab söötmiskiirust reguleerida vastavalt põletuse koormusele.

Astme rest
Tenori prügi põletamine on allapoole pussitud kaldult koluga rest, rest jaguneb kuivatamise, põlemise ja põletamise kolmeks etapiks ning resti iga sektsiooni vahel on seatud kõrguse erinevus, nii et pärast kukkumist on hajutatud pärast kukkumist ja prügi lükatakse liikuma ja samal ajal takistatakse prügi kokku koguneda, et viia mittetäielik põletamine. Etapi resti juhivad hüdraulilised silindrid ja resti kolme sektsiooni saab iseseisvalt juhtida, nii et resti liikumistsüklit saab reguleerida vastavalt ahju põlemisseisundile. Risti on valmistatud kuumuskindlast valatud terasest, millel on hea kulumiskindla, kõrge temperatuuriga vastupidav ja korrosioonikindlad omadused.




Tuhakonveier, räbu remover
Tuhasüsteem koosneb alapunase tuhapunkrist (cum õhukamber), horisontaalsest tuhakonveierist ja räbu remondrist. Pärast täielikku jäätmepõlemist toodetud väikest peene tuha kogus langeb RET -i kaudu tuhapunkrisse ja koguneb seejärel horisontaalses tuhakonveieris. Jäätjäätmete põlemisel toodetud tuhk lükatakse põlemisosa resti kaudu räbu ämbrisse ja siseneb seejärel koos peene tuhaga märja räbu eelarvest. Kogu tuhk saadetakse räbu eelarvest räbu auku.

3. Töötlemise omadused
- Lihtne struktuur, hõlpsasti käitatav ja hooldatav;
- Rest on kõrge temperatuuri, korrosiooni ja hõõrdumise suhtes vastupidav madala asenduskiirusega;
- Isegi resti õhu jaotus, prügi ühtlane põletamine;
- Prügi piisav põletamine, soojuse vähendamise määr, mis on väiksem või võrdne 5%-ga;
- Seadmete modulariseerimine, lihtne paigaldamine, lühike ehitusperiood;
- Seadmed on täielikult automatiseeritud.

4. Teenuste leidmine
Usaldusväärne jäätmete põletamise seadmed

Jäätmete täieliku põletamise protsessilahendus

Rakenduslahendus
|
Võimsus |
Tehnoloogiline protsess |
Põhiparameeter |
Rakendusala |
|
50t/d |
①Arbage ahju → Põletus → Jahutus → Suitsugaasi töötlemine → Standardne eritis ② Prügi ahju → Põletus → jäätmete soojuskatla → suitsugaasi töötlemine → standardne tühjendus |
Päevane töötlemisvõime: 50T küllastunud aurumaht: 3 ~ 5t/h |
Projekt, mille igapäevane töötlemisvõimsus on 50T, sobib kodumaiste jäätmete kahjutuks ja vähendamiseks väikestes külades ja linnades. Sõltuvalt projekti olukorrast saab kõrgtemperatuurilist suitsugaasi enne tühjendamist otse jahutada ja puhastada, või auru tootmiseks ja müümiseks saab kasutada 3 ~ 5t/h küllastunud aurukatla. See ei sobi elektritootmiseks. Projekt on väikese ulatusega. Samade keskkonnakaitsestandardite täitmise eeldusel on sisend tonni prügi kohta liiga kõrge ja projektil pole kasumipunkti ega ole majanduslikult teostatav. See sobib mittetulundusühingutele või usaldusväärsetele Steami kasutajatele teatud väljundväärtuse suurendamiseks. Selles skeemis olev põletusahju ja jäätmekatla on paigutatud horisontaalselt eraldi ja ühendatakse kõrge temperatuuriga lõikudega. Võrreldes traditsiooniliste suuremahuliste jäätmete põletamise projektidega, väheneb selle skeemi seadmete üldine kõrgus märkimisväärselt ja seadmete kogukõrgus on alla 20 m. |
|
100~200t/d |
Jäätmed ahju → põletus → jäätmete soojuskatla → suitsugaasi töötlemine → standardne eritis |
Töötlemisvõimsus: 100 ~ 200T Küllastunud auru maht: 8 ~ 20t/h |
Projekt, mille igapäevane töötlemisvõimsus on 100T, sobib kahjutuks, ressurssipõhiseks ja vähendatud kodumaiste jäätmete töötlemiseks külade ja linnade väikestes piirkondades ning jäätmete soojuse taastamiseks ja kasutamiseks. See on varustatud 8 ~ 10t/h küllastunud aurukateldega. Skaala on liiga väike ja ebastabiilne ning see ei sobi elektritootmiseks. Aurutoodang on siiski märkimisväärne ja seda tuleb müüa kasumi saamiseks või kasutada koos teiste auru vajavate tööstusharudega. Põletus- ja jäätmete soojuskatla on paigutatud eraldi ja horisontaalselt. |
projektijuhtum
Hanoi City, Vietnam, 600T/D jäätmete põletamise elektritootmise projekt (suurte jäätmete põletamise elektritootmise projekt)
Vietnamis Hanoi linnas asuvas 600T/D jäätmete põletamise elektritootmise projekt kasutab meie kolmeastmelist kaldult edasi-tagasi resti ahju 600T jäätmete igapäevaseks töötlemiseks, aurukatel +18 MW generaatori komplektiga 75T/h. Projekt on praegu ehitamisel.


Vietnam Hanoi City 70T/D Kodujäätmete põletamise projekt
Vietnamis Hanoi linnas asuv tahkete jäätmete põletamise projekt kasutab meie kolmeastmelist kaldult koluga resti ahju, et töödelda 70T tahkete jäätmete töötlemiseks päevas. Seadmed on tootmises.


70T/D Kodujäätmete põletamise rest
Zhengxiangbai ribareklaamide karjameeste elukeskkonna parandamise projekt (Tsinghua ülikool) (väikeste jäätmete põletamise seadmed)
Zhengxiangbai ribareklaamide karjameeste elukeskkonna parandamise projekt.

võtab vastu meie kallutatud kolb -stokeri, et ravida 30 -tonnine kodumaised jäätmed päevas. Projekt on praegu ehitamisel.
Hiina ühe professionaalseima jäätmepõletusahju tarnijana kajastavad meid kvaliteetsed tooted ja hea teenindus. Palun ostma siin meie tehasest siin Hiinas valmistatud kvaliteetseid jäätmete põletusahju.





